Comprar

Casa en Roldán a precio sub costo

7961

ID

625 m2

Superficie

3

Ambientes

2

Baños

U$S 147.000

Descripción

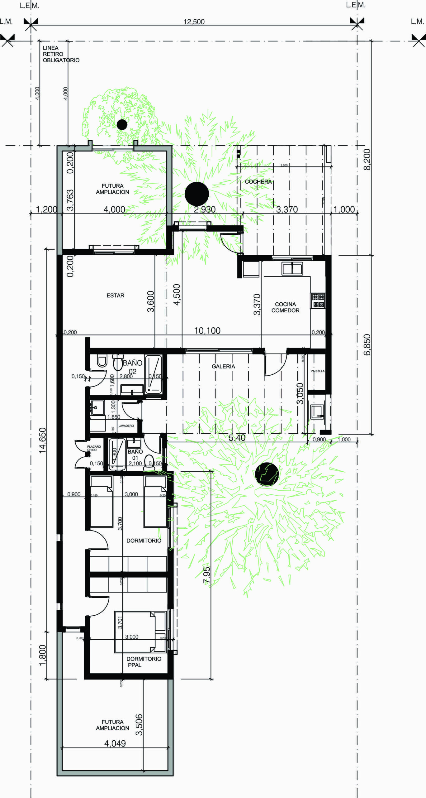
Sobre un terreno de 12.50 x 50 metros, en el barrio Villa Alicia, rodeado de arboleda añosa, se encuentra esta casa de 2 dormitorios, de construcción tradicional y con detalles de calidad.
Cuenta con una amplia cocina comedor y estar unificado, dos baños uno externo en zona de quincho y piscina), lavadero, griferías FV y bachas Jonhson.

Posee instalación de gas natural.

Se encuentran incluidos en el precio la totalidad de los calefactores (3) y aires acondicionados (3) así como el termotanque y la cocina a gas.

Opción de adquirir alarma instalada y con monitoreo.

Cochera techada, galería con asador, y una piscina de 7 x 4 metros con amplio sector de losetas térmicas.

Con un total de 130mts2 construidos, de los cuales 99.20mts2 son cubiertos y 31.2mts2 son semicubiertos.

Han sido proyectada con posibilidades de ampliación para construir un dormitorio más, y otro espacio al ingreso de la propiedad destinado a consultorio, oficina, etc.

 

 

Aviso legal: La información expuesta en la presente publicación es de acuerdo a los datos suministrados por el propietario y no vinculan contractualmente a Vaslet, siendo las fotos al solo efecto de ilustrar el perfil del inmueble. Asimismo para el caso de venta se condiciona la operación al cumplimiento de los requisitos exigidos por el organismo tributario nacional u otros que pudieren corresponder.
Cristian SCOPONI Corredor Inmobiliario Matrícula Nº 2073

Dirección

  • Dirección San Benito 277, Roldan, Santa Fe
  • País Argentina
  • Province/State
  • City/Town
  • Postal code/ZIP 2134
Abrir con google maps

File Attachments

PLANO-DE-OBRA-JPG-cri-1-scaled.jpg
PLANO-DE-OBRA-JPG-cri-1-scaled.jpg
Download